Opis
Wkład kominkowy z płaszczem wodnym Spartherm Varia 2R-55h H2O-4S
NAPISZ LUB ZADZWOŃ! DORADZIMY TECHNICZNE I NA PEWNO OSIĄGNIEMY KOMPROMIS CENOWY

Parametry techniczne:
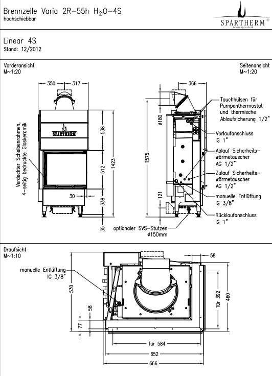
Szerokość drzwiczek: 584/392 mm
Wysokość drzwiczek: 512 mm
Moc znamionowa: 7 kW
Sprawność: 80 %
Średnica wylotu spalin: 180 mm
Wkład kominkowy Spartherm to palenisko dwupłaszczowe, z zewnętrznym korpusem stalowym i wnętrzem wyłożonym jasnym lub czarnym szamotem. Wkład posiada szybę witro-ceramiczną, z systemem czystej szyby (kurtyna powietrzna). Kominek posiada doprowadzenie powietrza z zewnątrz. Gwarancja: 5 lat, z możliwością przedłużenia do 10 lat w ramach Rodziny Spartherm. Kraj pochodzenia – Niemcy.
Dane techniczne
| Rodzaj | Z płaszczem wodnym |
| Materiał | Stal z szamotem |
| Kształt szyby | Narożna |
| Sposób otwierania drzwiczek | Do góry |
| Powietrze z zewnątrz | Tak |
| Układ schładzający | Tak |
| Kominek do rekuperacji | Nie |
| Wylot spalin | Góra |
| Materiał opałowy | Drewno |
Koszty dostawy
Dostawa kurierem – do ustalenia,
Odbiór osobisty 0,00 zł














Opinie
Na razie nie ma opinii o produkcie.